Продается дом, 90 кв.м., /1 эт
Обзор№ - 57867
| Стоимость | 6 700 000 |
|---|---|
| Тип комнат | раздельные |
| Комнат в доме | 3 |
| Категория земли | ИЖС |
| Тип строения | Дом |
| Площадь, кв.м. | 90 |
| Площадь участка, сот | 4.5 |
| Этажность | 1 |
| Материал стен | Кирпич |
Адрес
| Населенный пункт | Индустриальный Поселок |
|---|---|
| Улица | улица Мирная |
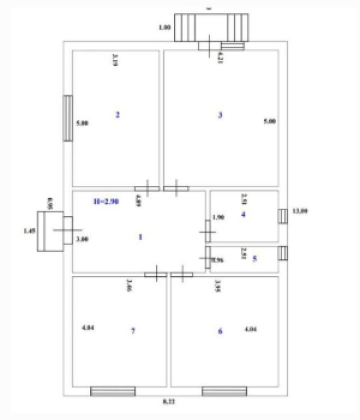
В избранное Дом 90кв.м на 4,5сот.
Продается дом 90кв. в поселке Индустриальный, участок 4,5сот. Дом с качественной предчистовой отделкой, сухая механическая стяжка пола, смонтировано отопление, установлены радиаторы и электрокотел, выполнена разводка электрики, выводы под сантехнику, стены отштукатурены и отшпатлеваны. Отличная планировка: три спальни, кухня-гостиная, раздельный сан.узел. В дом заведены коммуникации: водоснабжение, электричество 15 кВт, септик.
Рассмотрим ипотеку любого банка, при необходимости поможем в открытии. Подробнее по телефону







