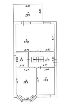
Продается дом, 70 кв.м., /1 эт
Обзор№ - 57880
| Стоимость | 6 950 000   | 
|---|---|
| Тип комнат | раздельные | 
| Комнат в доме | 2 | 
| Категория земли | ИЖС | 
| Тип строения | Дом | 
| Площадь, кв.м. | 70 | 
| Площадь участка, сот | 3.8 | 
| Этажность | 1 | 
| Материал стен | Кирпич | 
Адрес
| Населенный пункт | Ленина Хутор | 
|---|---|
| Улица | улица тихая | 
В избранное Дом 70кв.м на 3,8сот
Продается дом 70кв.м на 3,8 сот., х.Ленина ул. Тихая. Дом с качественной предчистовой отделкой, смонтировано отопление, установлены радиаторы и котел, теплые полы. Отличная планировка: большая кухня-гостиная, сан.узел, 2 спальни. В дом заведены коммуникации: водоснабжение, электричество, септик.
Рассмотрим ипотеку любого банка, при необходимости поможем в открытии. Подробнее по телефону





