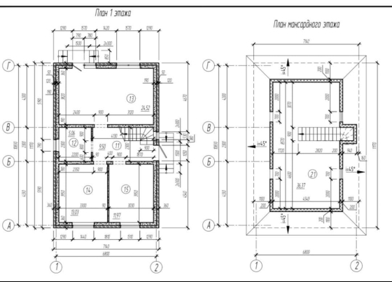
Продается дом, 100 кв.м., /1.5 эт
| Стоимость | 8 100 000 |
|---|---|
| Комнат в доме | 3 |
| Категория земли | ИЖС |
| Тип строения | Дом |
| Площадь, кв.м. | 100 |
| Площадь участка, сот | 3 |
| Этажность | 1.5 |
| Населенный пункт | Краснодар |
|---|---|
| Улица | улица Багратионовская |
Продается 1,5дом 100кв.м на 3сот. в поселке Индустриальный. Дом блочно-кирпичный. Дом с качественной предчистовой отделкой, механизированная стяжка пола, теплые полы в холодных помещениях и на кухне, смонтировано отопление, установлены радиаторы и электрокотел, выполнена разводка электрики, выводы под сантехнику, стены отштукатурены. В дом заведены коммуникации: водоснабжение - скважина 30м., электричество 15 кВт, септик 8 куб м и газ по меже.
Забор из профнастила, распашные ворота. Забетонированы: парковка, подход к дому и отмостка.
Эко-поселок с чистым воздухом. Развитая инфраструктура: общественный транспорт, школа, детский сад, Поликлиника №13, Краевая клиническая больница №1, продуктовые магазины, аптеки. Все участки предназначены для индивидуального жилищного строительства. Подъезды к домам забетонированы.







